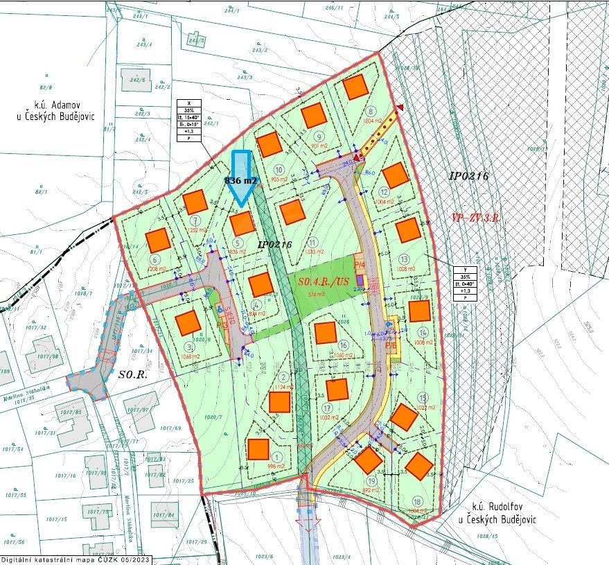
PRODEJ STAVEBNÍ PARCELY 833 M2, RUDOLFOV U ČESKÝCH BUDĚJOVIC
Nabízíme k prodeji exkluzivní stavební parcelu v obytné zóně na konci slepé ulice s krásným výhledem na České Budějovice a Kleť, pozemek se nachází na jihozápadním svahu na okraji obce Rudolfov.
Pozemek s výměrou 833 m2 – stavební parcela je umístěna za poslední řadou rodinných domů, zároveň z horní strany od severovýchodu je ohraničena vzrostlými duby.
Parcela je začleněna v územním plánu města Rudolfov ve studii „Šibeník – sever, varianta 2“
s regulativy:
• samostatné rodinné domy
• zastavitelnost max 35 %
• podlažnost: 1 nadzemní podlaží + podkroví + podsklepeno
2 nadzemní podlaží + podsklepeno
Veškerá občanská vybavenost včetně MHD v docházkové vzdálenosti.
Vzhledem k umístění ve slepé ulici jsou pozemky vhodné pro rezidenční domy pro majitele, kteří uvítají klid, soukromí a krásný výhled na Budějovickou kotlinu a Blanský les.
Cena 3.790.000, -Kč + podíl na zasíťování. (Rozpočtovaná cena 1.200.000, -Kč, realizace v letošním roce.) Doporučujeme osobní prohlídku.
Operace
Prodej
ID nemovitosti
5327-M5
Typ nemovitosti
Pozemek
Subtyp nemovitosti
Bydlení
Město
Rudolfov
Umístění objektu
Okraj obce
Plocha pozemku
833 m2
Mapa umístění nemovitosti
Developerský projekt Řadové Bungalovy Mladé – úspěšně prodánoDeveloperský projekt Řadové Bungalovy Mladé byl nedávno úspěšně dokončen a všechny řadové domy byly prodány a předány novým majitelům. Tento projekt se nachází v lukrativní části krajského města České Budějovice, konkrétně v rezidenční oblasti Rezidence Mladé – bydlení v zeleni. Tento projekt konkrétně nabízel přízemní řadové domy o velikosti 3+kk, každý s vlastní zahradou a venkovním parkovacím stáním.
Úspěšný prodej developerského projektu Viladomy ROUDNÉV nedávné době byl úspěšně dokončen a kompletně prodán developerský projekt výstavby rodinných domů s názvem „Viladomy ROUDNÉ“ v obci Roudné u Českých Budějovic. Tento projekt nabízel moderní a prostorné rodinné domy o dispozici 5+kk s obytnou plochou 143 m². Každý dům byl vybaven oplocenou zahradou, prostornou garáží a venkovním parkovacím stáním, což zajišťovalo dostatek místa nejen pro rodinné vozidlo, ale i pro návštěvy.
PRONÁJEM NEBO KOUPĚ?Rozhodnutí, zda jít do vlastního bydlení nebo do pronájmu, závisí na mnoha faktorech a individuálních okolnostech. Zde jsou některé klíčové faktory, které byste měli zvážit při tomto rozhodování:

