PRODEJ STAVEBNÍ PARCELY 1.057 M2, LIPÍ U ČESKÝCH BUDĚJOVIC
Lipí
Subtyp nemovitosti: Bydlení
4 843 800,-
Mám zájemPRODEJ STAVEBNÍ PARCELY 1.057 M2, LIPÍ U ČESKÝCH BUDĚJOVIC
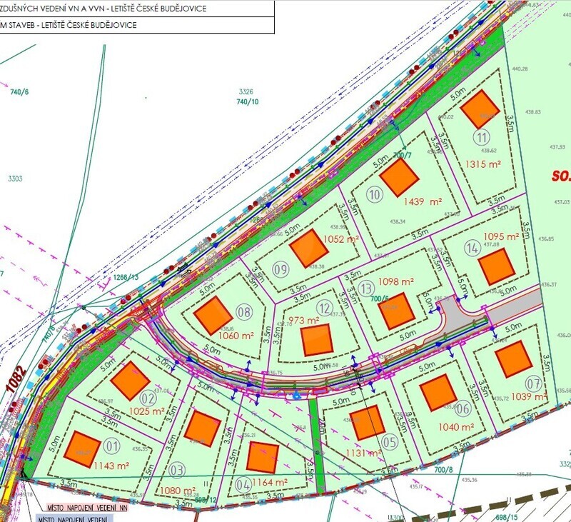
Nabízíme k prodeji stavební parcelu o výměře 1.053 m2 v klidné a okrajové části obce Lipí u Českých Budějovic. Stavební parcela se nachází v nově vzniklé lokalitě 14 stavebních pozemků okrajové části obce. Pozemek je kompletně zasíťovaný (elektřina 220/380 V, plyn, voda - obecní, kanalizace – obecní, internet ) a přístupný z obecní komunikace. Tato nově vzniklá lokalita obce Lipí je vzdálena 11 km od centra krajského města České Budějovice. Při plánování této výstavby byl kladen důraz na zachování prestiže a soukromí této lokality s důrazem na vysoký komfort bydlení. V obci Lipí se nachází obecní úřad, mateřská školka, pohostinství, zastávka linkového autobusu). Krajské město České Budějovice s veškerou občanskou vybaveností je vzdáleno 11 km. Další dotazy Vám rádi zodpovíme v naší kanceláři. Doporučujeme osobní prohlídku.
Operace
Prodej
ID nemovitosti
5023-R9
Typ nemovitosti
Pozemek
Subtyp nemovitosti
Bydlení
Město
Lipí
Umístění objektu
Klidná část obce
Plocha pozemku
1053 m2
Videoprohlídka nemovitosti
Mapa umístění nemovitosti
Developerský projekt Řadové Bungalovy Mladé – úspěšně prodánoDeveloperský projekt Řadové Bungalovy Mladé byl nedávno úspěšně dokončen a všechny řadové domy byly prodány a předány novým majitelům. Tento projekt se nachází v lukrativní části krajského města České Budějovice, konkrétně v rezidenční oblasti Rezidence Mladé – bydlení v zeleni. Tento projekt konkrétně nabízel přízemní řadové domy o velikosti 3+kk, každý s vlastní zahradou a venkovním parkovacím stáním.
Úspěšný prodej developerského projektu Viladomy ROUDNÉV nedávné době byl úspěšně dokončen a kompletně prodán developerský projekt výstavby rodinných domů s názvem „Viladomy ROUDNÉ“ v obci Roudné u Českých Budějovic. Tento projekt nabízel moderní a prostorné rodinné domy o dispozici 5+kk s obytnou plochou 143 m². Každý dům byl vybaven oplocenou zahradou, prostornou garáží a venkovním parkovacím stáním, což zajišťovalo dostatek místa nejen pro rodinné vozidlo, ale i pro návštěvy.
PRONÁJEM NEBO KOUPĚ?Rozhodnutí, zda jít do vlastního bydlení nebo do pronájmu, závisí na mnoha faktorech a individuálních okolnostech. Zde jsou některé klíčové faktory, které byste měli zvážit při tomto rozhodování:

